Parcela Residencial en Costabella
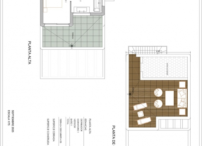
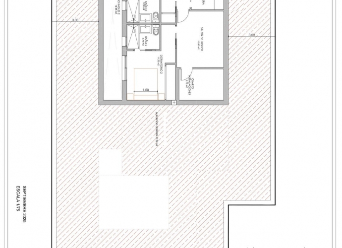
oportunidad excepcional para adquirir una parcela de 395 m² muy bien situada en la codiciada Avenida Andasol, Marbella. A solo 2 minutos a pie de la playa y cerca de todos los servicios, esta parcela ofrece la combinación perfecta de comodidad y estilo de vida. ✅ Plan del proyecto listo para comenzar: ahorre tiempo y molestias con un proyecto totalmente preparado, que le permitirá comenzar la construcción de inmediato. ✅ Oportunidad de inversión: ideal para promotores que buscan un alto rendimiento potencial en una de las zonas más deseadas de Marbella. ✅ Construya la casa de sus sueños: tanto si está planeando una lujosa villa moderna como una encantadora residencia de estilo mediterráneo, esta parcela le ofrece la flexibilidad necesaria para crear su espacio vital perfecto. Aspectos destacados de la ubicación: A poca distancia de la playa. Cerca de campos de golf, restaurantes y tiendas. Fácil acceso al centro de Marbella y a Puerto Banús. No se pierda esta oportunidad única. Tanto si es un inversor como si busca construir su hogar definitivo, esta parcela ofrece un valor y un potencial increíbles.
Más Información
- Carateristicas: Commercial Area, Cerca de Golf, Cerca de Tiendas, Cerca del Mar, Cerca de Escuelas
- Categoría: Inversión, With Planning Permission










